FREEHOLD FOR SALE
WEST WORKS, PLAYING FIELDS ROAD, WESTBURY, NN17 5LA
The Property
THE PROPERTY
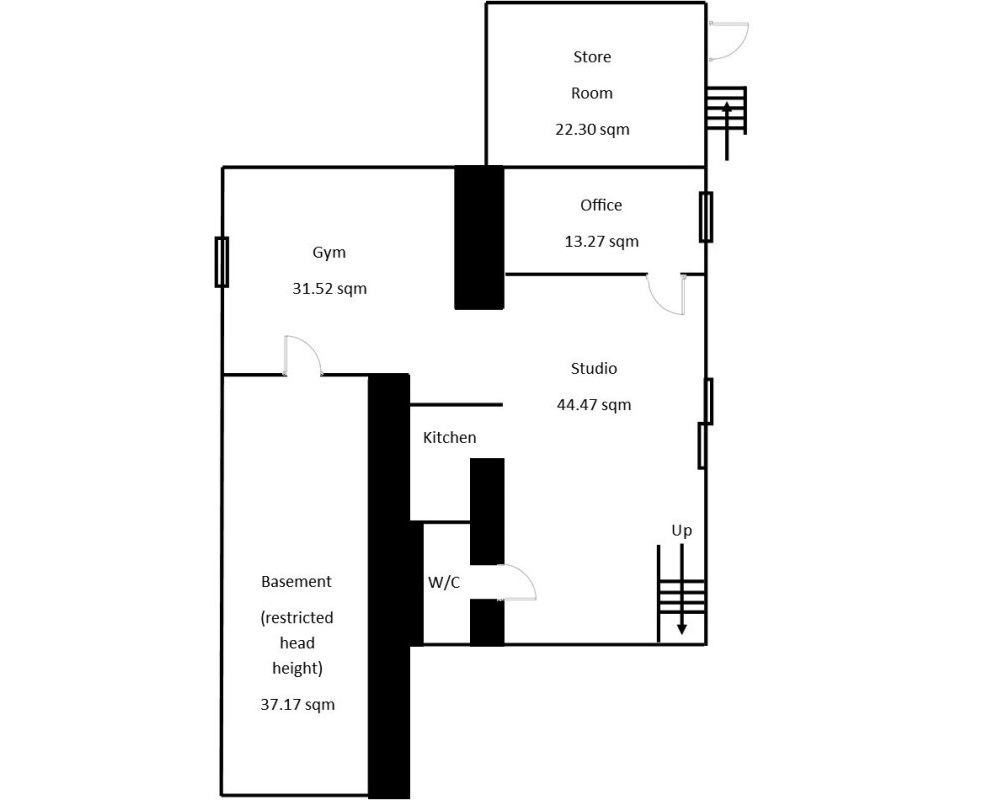
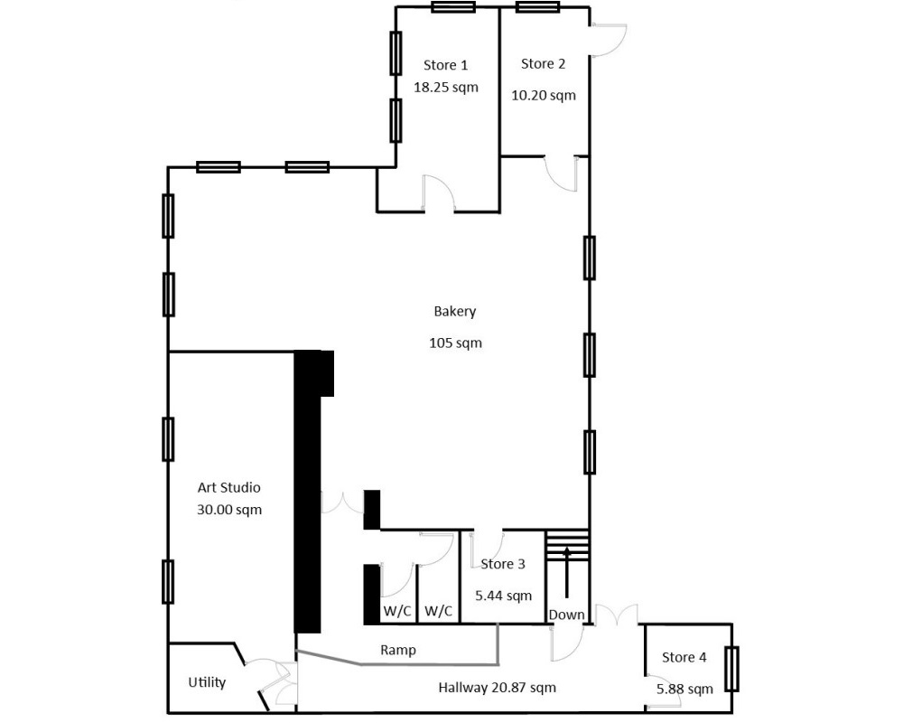
The property, a former light industrial business unit, has been recently renovated to provide a mixed-use building. The ground floor comprises offices and the first floor is predominately a bakery plus an art studio. There is space for parking at the front.
There is both an internal staircase and an external stair to the first floor. The property benefits from three phase power.
Each floor has WC facilities. The property has mains electric, water and drainage. There are modern ceiling mounted air cooling/heating units to the ground floor and the first floor studio.
PLANNING
Wild Property has not made any formal investigations on the planning history of the property and it is expected that the purchaser satisfies themselves as required.
ACCOMMODATION
The property provides 4,231 sq ft (391.3m²) of gross internal accommodation, please see the brochure for more details and floorplans.
TENURE
The property is available freehold, subject to short term leases as follows:
Ground Floor:
No lease, available with vacant possession.
First Floor:
Lease to Mr Woodburn trading as Geoff's Artisan Baker until 31st December 2024 at £6,000 p.a.(Bakery and stores 1 to 3)
Lease to Miss Manderston until 31st December 2024 at £1,800 p.a. (art studio)
Licence agreement for an office/store room at £600 for the year (store 4).
It is possible to secure vacant possession on the whole of the first floor if required.
Accommodation:
| Floor Areas | Details | Square Feet |
|---|---|---|
TOTAL AREA | 391.3 sq m | 4,231 sq ft |
Ground Floor | ||
Office & Studio Space | 89.26 sq m | 961 sq ft |
Store Room | 22.30 sq m | 240 sq ft |
Kitchen & WC | ||
Basement Storage | 37.17 sq m | 400 sq ft |
First Floor | ||
Bakery | 105 sq m | 1,130 sq ft |
Store Rooms | 39.77 sq m | 428 sq ft |
Art Studio | 30 sq m | 323 sq ft |
Location
Pricing
FREEHOLD FOR SALE

Contact Neil Wild
Sugarford House
46 South Bar Street
Banbury
Oxon OX16 9AB
Email:




















