SUITABLE FOR A VARIETY OF USES
FAIRSPEAR BARNS, FAIRSPEAR ROAD, LEAFIELD, WEST OXFORDSHIRE, OX29 9NY
The Property
March 2024 update: A share of a workshop is available, ideal for a creative / studio space at £500 per month, plus utility costs.
The barns have been refurbished to provide the following features:
Ground floor suitable as store rooms, but potentially suitable for workshop, light production/assembly or packaging.
Tastefully refurbished first floor offices
Kitchen, WCs and shower
Electric and Gas supply
Parking and loading area
Rural location with desirable views
Double glazed windows
New LED lighting
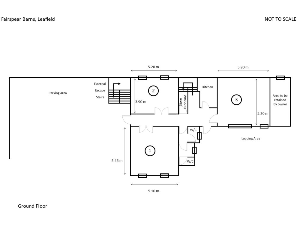
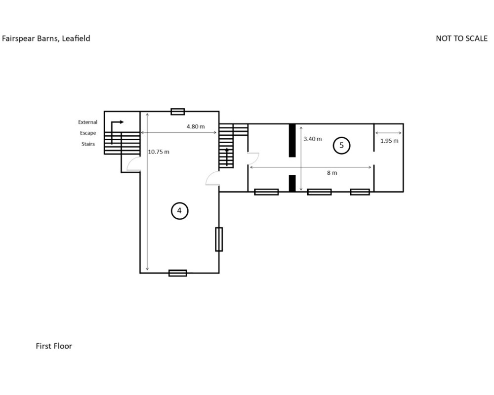
Accommodation:
| Floor Areas | Details | Square Feet |
|---|---|---|
GROUND FLOOR | ||
Store Rooms | Room 1 - LET | 300 sq ft |
Room 2 - LET | 220 sq ft | |
Room 3 - LET | 325 sq ft | |
Total | 845 sq ft | |
FIRST FLOOR | ||
Offices | Room 4 - PART AVAILABLE | 555 sq ft |
Room 5 - LET | 360 sq ft |
Location
The village of Leafield is within West Oxfordshire, on the edge of the Cotswolds. Situated in a triangle between the towns of Witney, Burford and Chipping Norton, 18 miles north-west of Oxford, and five miles from Chalbury railway station (with easy connections to Oxford and London).
Pricing
Room 4. A share of the room with a carpenter at £500 per month plus a contribution to shared utilities. The owner does not charge VAT.

Contact Neil Wild
01295 983 333
Sugarford House
46 South Bar Street
Banbury
Oxon OX16 9AB
Email:


















