INDUSTRIAL UNIT FOR LEASE
34B MURDOCK ROAD, BICESTER, OX26 4PP
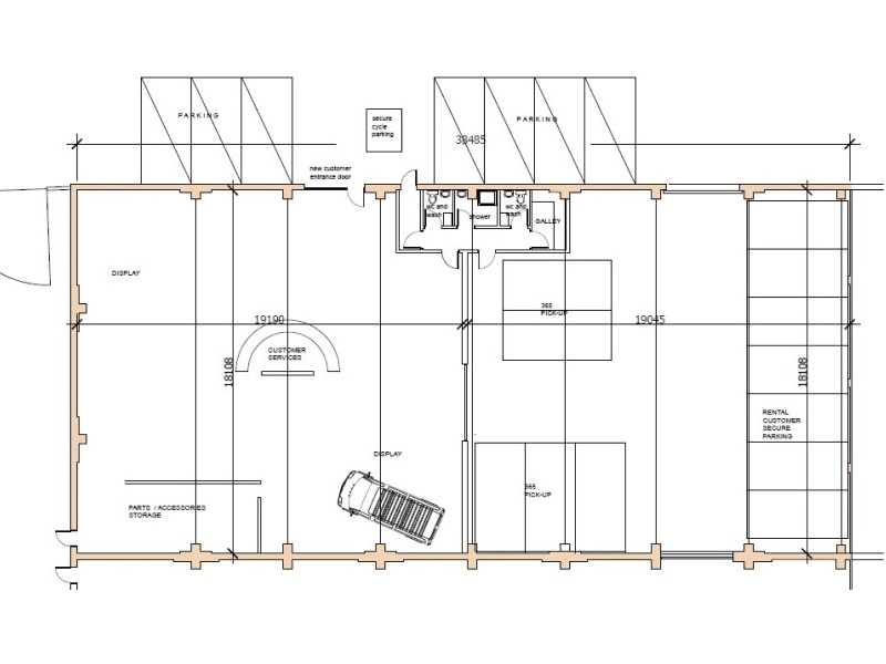
The Property
The unit is on the Murdock Road, forming part of the established Launton Road industrial estate to the east of the town centre.
The property has the following features:
Open plan warehouse or showroom: 38.40 metres x 17.90 metres.
Floor Area (Gross Internal): 690 sq m / 7,440 sq ft
Eaves Height: 4.60 metres
Large loading Door: 4 metre height
Brand New Customer Entrance Doors with electric roller security shutter
Parking for 8 vehicles on the forecourt
Three phase electric
Double glazed windows
New LED lighting
Planning permission for installation of toilet facilities (at present there are no such facilities)
Accommodation:
| Floor Areas | Details | Square Feet |
|---|---|---|
Open plan warehouse or showroom | 38.40 meters x 17.90 meters | 125.90 ft x 58.72 ft |
Floor Area (Gross Internal) | 690 sq m | 7,440 sq ft |
Eaves Height | 4.60 meters | 15.09 ft |
Large loading Door | 4 meters height | 13.12 ft |
Location
Pricing
SUITABLE FOR A VARIETY OF USES

Contact Neil Wild
Sugarford House
46 South Bar Street
Banbury
Oxon OX16 9AB
Email:
















