FORMER CAFE BAR TO LEASE
11 HIGH STREET, BANBURY, OXFORDSHIRE, OX16 5EE
The Property
11 HIGH STREET
BANBURY OX16 5EE
FORMER CAFÉ BAR
The property is Grade II Listed.
There is a separate residential dwelling above.
There is no kitchen facility within the premises and there is limited scope for external ducting for kitchen extraction equipment.
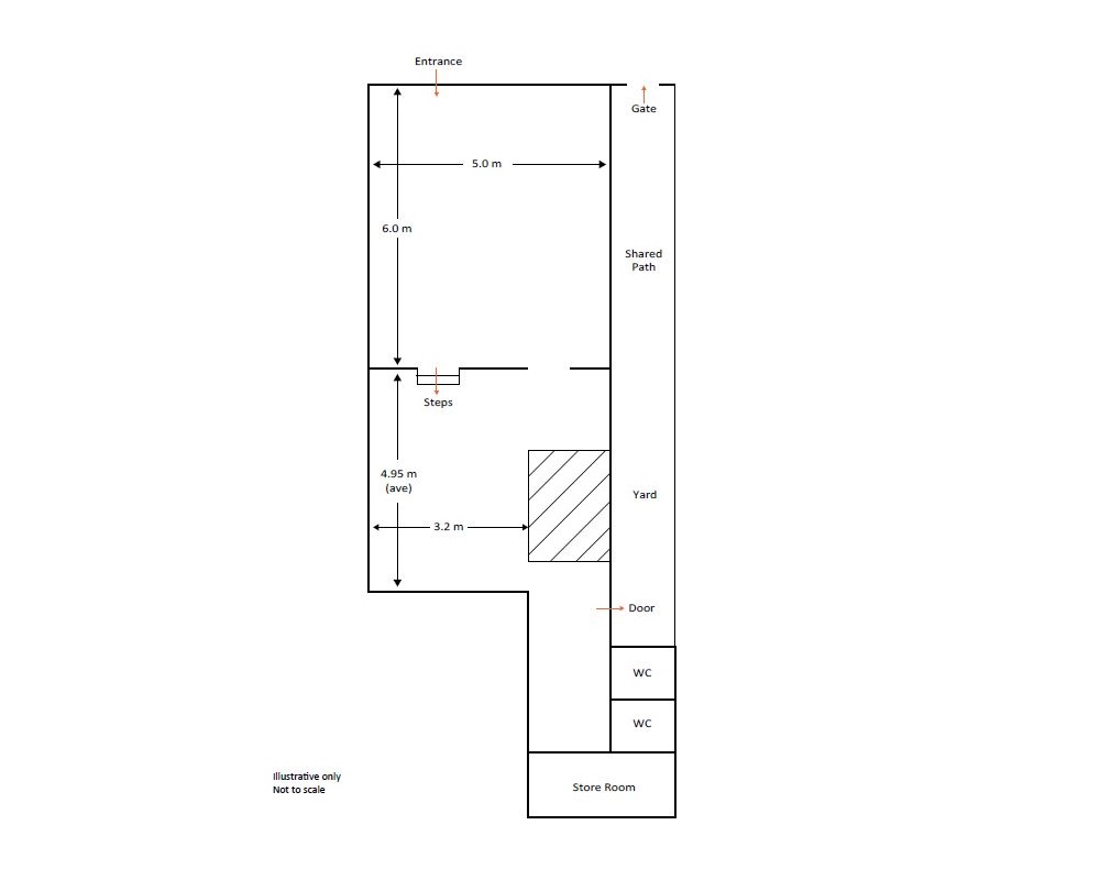
The unit is on the ground floor with the sales area split into two parts with steps between the two sections.
There are toilets suitable for customers.
This part of the High Street is pedestrianised.
PLANNING
There are no recent planning or listed building consents relating to the property.
It is our opinion the property falls within Class E. The property does not have formal consent for a wine bar.
Accommodation:
| Floor Areas | Details | Square Feet |
|---|---|---|
Ground Floor Sales Front | 30 sq m | 323 sq ft |
Ground Floor Sales Back | 16 sq m | 171 sq ft |
Ground Floor Store Room | 11 sq m | 120 sq ft |
Total | 57 sq m | 614 sq ft |
Location
Pricing

Contact Neil Wild
Sugarford House
46 South Bar Street
Banbury
Oxon OX16 9AB
Email:




















